新农村自建房设计:3层简欧别墅,挑空客厅+双车库+露台,梦想家园实现
现如今,农村自建房的挑选越发呈现出多元化态势,诸如美式乡村风格式样的,欧式小豪宅样式的,中式庭院样式甲等设计纷纷得以瞧见。在北方,单层且带有院落这种布局较为常见。于南方,多层小楼样式的宅子则更为盛行。今日所要介绍的是一套,针对于广东、福建此类、气候相对较热的一些地区而言的一种三层简欧式自建房,它涵盖了露台,双车库,挑空客厅等相关配置,其整体造型呈现出高低错落、极有秩序极具美感、非常得体的状态且让人一看就深感和谐到位。
一、户型整体特点

外观采用简欧风格的这套户型,立面借由线脚以及窗框形成层次方面的变化,屋顶运用坡屋顶设计,这有利于排水以及隔热,建筑一共有三层,总的建筑面积大概是300平方米,适合宅基地面宽12米、进深在10米左右的场地,诸多的亮点包含挑空客厅、双车库、多露台设计,这些既能够达成实用方面的功能,也把居住品质给提升了。
二、一层布局细节
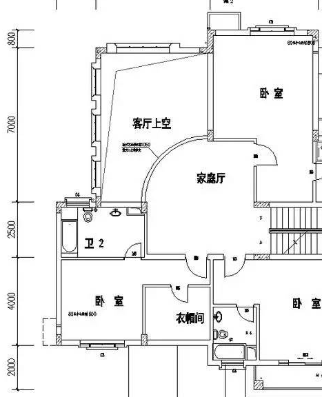
走到房屋入口处设置玄关这一区域,进而能起到一种过渡的特定功能性作用,屋子左侧是专门为老人准备的房间,带有独立的卫生间,如此很好地便利了老人日常的起居生活,屋子右侧是双车库,能够用来停泊两辆小型汽车或者放置农具,客厅运用挑空设计方式,与餐厅相互连通,从视觉上来说愈发显露出开阔之感,玄关和客厅之间有着两步台阶的高度差,这样就增强了空间方面的变化情况,值得留意的是,在南方地区宅基地审批通常较为严格,面积大多处于100平方米左右,这套户型或许需要对尺寸进行调整,在北方地区面积上相对充足,然而在传统习惯上较少建造高层住宅 。
三、二层功能分配
在二层,有着三间卧室被布置,它们全部是朝南采光的。其中的一间带有自己独立的卫生间,另外的两间共同使用一间卫生间。家庭厅处于挑空客厅的上方位置,从而形成了能够俯视客厅的交流空间,这可是设计之中的一个亮点。对于这种结构,建议采用现浇混凝土框架,以此来保证安全性,它不太适宜砖混结构。

四、三层主人套房
主人生活区占据三层的整一层哦,这里涵盖着一间卧室呢,还有一个书房呀,以及独立的卫生间哟,卫生间里面能够放置浴缸咧,可以满足舒适沐浴的需求哒,书房的外面连接着露台呐,能提供户外休息的场所呢,南方地区常常会把顶层层高降低呀,仅仅用作储藏方面的使用咧,实际上通过增加隔热层哦,就像采用挤塑板隔热这种方式那样呀,就能够有效地针对顶层的温度进行改善哒,还能多出一层适宜居住的空间呢。
五、建造注意事项
建造这般户型得要考虑如下几点:其一三层带车库露台农村别墅设计,挑空客厅还有错层结构针对施工技术所要求的程度较高,提议去找专业施工队。其二,现浇混凝土框架的造价大约在每平方米1500至2000元,相较于砖混结构高出大概20%,不过安全性以及抗震性更佳。其三,露台跟屋顶的防水需要着重去处理,建议运用双层防水措施。
六、地域适应性调整

于广东、福建等多雨专区范围内,能够加大屋檐出挑幅度,以此对外墙予以保护。车库能够变更为半开放式车库,从而增强通风效果。于湖南、湖北等地,要是宅基地面积受限,那么能够压缩面宽尺寸,把车库与主体结构脱离开来。北方地区要是不想建造得太过高耸,那么能够取消三层建筑,将主人房移至第二层,把露台改造成阳光房。
七、成本与价值
依据当下建材价格情况,此类户型的主体造价大概处于45至60万元的范围,装修费用需另行计算。尽管投入数额并非不高,然而将其与城市房价相比较,依旧具备性价比。多个房间的设计适宜多代人共同居住,挑空的客厅以及露台使得生活品质得以提升,如此这般的自建房在农村环境当中的确能够成为令人向往的家园。
农村自建的房屋,已不再单单只是起到遮风挡雨作用的所在了,而是成为了融合多种功能、具备舒适感以及有着审美特性的一种生活空间。这样的一套三层简欧风格的户型,凭借着合理的布局安排,加上注重细节方面的设计,从而展现出了现代农村住宅的发展趋向,是值得那些有自建房需求的人去参考并借鉴的。

- 新农村自建房设计:3层简欧别墅,挑空客厅+双车库+露台,梦想家园实现[图]
- 极简玻璃门设计理念解析:光影艺术与色彩空间的完美融合[图]
- 宿舍开黑必备!四款强性能游戏本推荐:学生党必看选购指南
- 告别弯腰驼背痛苦!可升降人体工学桌成救星,电脑桌选购攻略在此[图]
- 装修材料计算秘笈:学会这3招,立省30%预算!再也不怕被坑[图]
- 房子装修步骤全解析:从测量到家具进场,装修价位如何确定?[图]
- 装修水电验收注意事项?水电改造必备材料清单,一文全解析[图]
- 56㎡三室改造,教科书级收纳!23.7㎡储物空间如何实现?
- 建设工程空气质量检测:专业验收三步走,你做对了吗?[图]
- 免漆板衣柜避坑指南:环保虽好,但这些问题要注意[图]








