近地铁口/高铁站!郑州博学美寓人才公寓介绍
本期房源介绍的是
博学美寓人才公寓
位于郑东新区
公寓配套设施、基础信息、周边概况
一起来了解一下吧
01
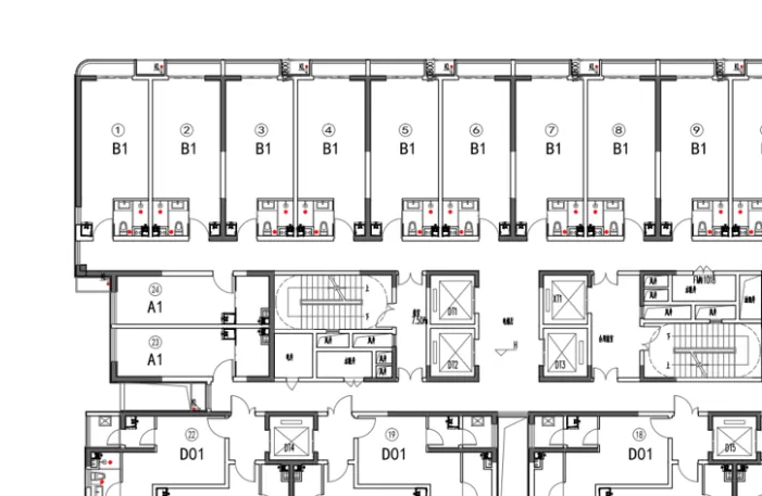
郑州博学美寓户型配置

图源:郑州城发安居有限公司(下同)
概况:全屋精装交付,拎包入住,以简洁、温馨、明亮为主
户型:房间配置依据户型设计有所调整,以实际为准,以下户型仅供参考,具体请以郑好办申请页面为准。

博学美寓标准层平面图

02
地址及周边概况
地址:郑东新区,道东街北,博学路东。
交通:毗邻郑州东站东广场,1号线博学路站(直线距离约300m),500m内十余个公交站点,多条公交线路途经,交通便利。
附近环境:郑东新区市民体育公园、龙子湖公园。

图源:郑州城发安居有限公司
附近学校:郑州市第五十四中学、郑东新区华水小学、龙子湖高校园区。
附近商业:新田360广场(郑州绿地店)、绿地天空之城、海邻茂、郑东万象城
附近医院:郑州人民医院郑东院区、郑州市第一人民医院商都园区、华北水利水电大学医院。
03
博学美寓费用及注意事项
租金押金:1086元/月起,月度缴付;押金2000元(具体请以郑好办配租租金为准,不同批次户型、租金均有差异)
租期:1-3年,续租、退租需提前申请,满足条件可续租至45岁
图源:郑州城发安居有限公司
水电物业费用:电费0.56元/度,水费4.5元/吨。
其余事项:免费预装网络,停车办理请咨询物业
图源:郑州城发安居有限公司
【提醒】美寓系列项目所有房源为我方国企直租,不存在中介及第三方机构,请勿相信“收取服务费、介绍费”,不存在“租赁后可购买”,特此提醒,请勿上当受骗
04
郑州人才公寓配租指南
优点:设施齐全环境好,租金低,费用公开透明,精装修设计交付,配备家具家电,拎包入住
配租及入住时间参考:郑州人才公寓一旦开放,之后就是常态化配租,有房源即可进行选房,上午9:00、下午16:00会集中释放房源。抢到房签订合同后,可在签订合同后3天内进行入住办理,未进行入住办理的房源会在第三天晚上12点自动释放
人才公寓租金参考(部分):
郑州城发玉轩美寓:271元/月起
郑州城发雪松美寓:505元/月起
郑地嵩山美寓:580元/月起
郑州城发江山美寓:862元/月起
郑州城发商都美寓:1179元/月起
*以上房租来源郑好办,仅供参考,具体请以实际为准









